Skip to main content
File #: PC18-1173    Version: 1 Name: CDP 2018-0018 - Outdoor Storage Facility
Type: Resolution Status: Agenda Ready
File created: 12/4/2018 In control: Planning Commission
On agenda: 12/12/2018 Final action:
Title: Conditional Development Permit No. 2018-0018: A request to allow an outdoor pallet storage yard with the development of a 1,486 square foot office building and a 1,200 square foot canopy on a 1.4-acre parcel located at 2257 S. Cactus Avenue within the Light Industrial (M-1) zone.
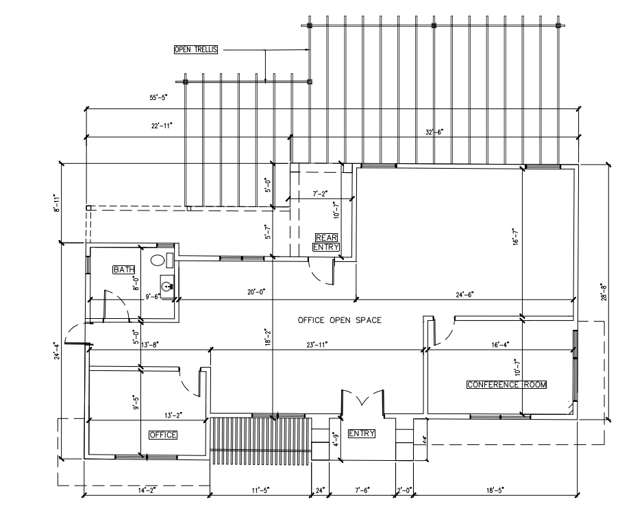
Attachments: 1. Exhibit A - Location Map, 2. Exhibit B - Site Plan, 3. Exhibit C - Floor Plan, 4. Exhibit D - Elevations, 5. Exhibit E - Conceptual Landscape Plan, 6. Exhibit F - Notice of Exemption, 7. Exhibit G - Draft Resolution of Approval for CDP No. 2018-0018
Date Ver.Action ByActionResultAction DetailsMeeting DetailsVideo
No records to display.
For the Planning Commission Meeting of December 12, 2018
TO: Honorable Chairman and Planning Commissioners
APPROVAL: Robb Steel, Assistant CA / Development Services Director
REVIEWED BY: Gina M. Gibson-Williams, Planning Manager
FROM: Edgar Gonzalez, Contract Planner

Title
Conditional Development Permit No. 2018-0018: A request to allow an outdoor pallet storage yard with the development of a 1,486 square foot office building and a 1,200 square foot canopy on a 1.4-acre parcel located at 2257 S. Cactus Avenue within the Light Industrial (M-1) zone.

Body
APPLICANT:

Jairo Perez, 13632 Homeward Street, La Puente, CA 91746.

LOCATION

The subject site is located at 2257 S. Cactus Avenue (APN: 0258-011-19) (Refer to the Location Map (Exhibit A)).

BACKGROUND:

Surrounding Land Use and Zoning

Location
Existing Land Use
Zoning
Site
Vacant Land
Light Industrial (M-1)
North
Vacant Land
Light Industrial (M-1)
East
Uppal Truck Parking Facility
Light Industrial (M-1)
South
Uppal Truck Parking Facility
Light Industrial (M-1)
West
Single-Family Homes
County of San Bernardino


General Plan Designations

Location
General Plan Designation
Site
Light Industrial
North
Light Industrial
East
Light Industrial
South
Light Industrial
West
County of San Bernardino


Site Characteristics
The project site is comprised of one (1) parcel of 1.4 acres in size and average dimensions of 460 feet (east west) by 142 feet (north-south). The property to the north is vacant. The property to the east and south of the project site is Uppal Truck Parking, in which their business consist of truck parking overnight.

ANALYSIS/DISCUSSION:

General Design
The applicant, Jairo Perez, proposes an outdoor pallet storage yard with the development of a 1,486 square foot office building and a 1,200 square foot canopy located at 2257 S. Cactus Avenue. The office building will be fronting Cactus Avenue and will include an office room, conference room, bathroom and an open area for additional offi...

Click here for full text